ARCHiMAGNET - YOUR joinery DRAFTING PARTNER

about us

Archimagnet

About us

Archimagnet is a leading provider of professional drafting services, catering to a diverse clientele across Australian joinery industries.
We deliver high-quality, precise drawings tailored to each clients needs, with a strong focus on innovation and customer satisfaction.
Our skilled team uses industry-leading software like CabMaster and Mozaik to ensure every project is completed with meticulous attention to detail and a commitment to excellence.
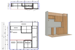
4.png

Expert JOiRNEY
DRAFTING

Get the best designs, layouts, and plans for your joinery projects with Cabmaster and Mozaik. Our team of experts will ensure that every detail is taken care of, providing you with flawless results every time.

5-1.png

pROFESSIONAL JOiRNEY DRAFTING

Evaluate your projects to the next level with professional drafting services from Cabmaster and Mozaik. Our attention to detail and commitment to quality will exceed your expectations, bringing your vision to life.

NDIS-2-KITCHEN-3D.jpg

CUSTOM JOiRNEY
DRAFTING

For unique and custom joiney drafting solutions. trust Cabmaster and Mozaik to deliver. Our team will work closely with you to understand your needs and create tailor-made plans that perfectly fit to your requirements.

Archimagnet

Welcome to our joinery drafting with cabmaster & mozaik !

NDIS-1-KITCHEN-3D.jpg
At Archimagnet, we prioritize clear communication, timely delivery, and cost-effective solutions. Our mission is to exceed your expectations with precise, detailed, and professional drawings that bring your ideas to life.
We aim to build long-term partnerships by earning your trust through our commitment to quality, reliability, and innovation. Whether you’re an architect, engineer, contractor, or designer, Archimagnet is your trusted partner for all joinery drafting needs.
Thank you for choosing Archimagnet. We look forward to turning your vision into reality with our top- notch drafting solutions.

Archimagnet

Quality Assuarance

At Archimagnet, we are dedicated to upholding the highest standards of quality assurance in all our drafting services. Our meticulous quality control team ensures that every drawing meets industry standards for accuracy and precision. By leveraging advanced software and best practices, we consistently deliver error-free drawings, reflecting our commitment to excellence and customer satisfaction.

13.png

Our Services

“Designing with Cabmaster and Mozaik has been an incredible journey of creativity and precision. Your story will continue to unfold, and your site can evolve alongside it. Your goal is to make it feel right for now, and the rest will fall into place. It always does.”

– Joiniry Drafting and Design.

Our Vision

To be the premier provider of professional joinery Drafting services, recognized for our commitment to precision, innovation, and exceeding client expectations.

Our Mission

To deliver high-quality, tailored joinary drafting solutions to our clients, utilizing industry-leading software and a dedicated team of professionals. We aim to foster long-term partnerships by providing accurate, detailed, and professional drawings that bring our clients’ visions to life. Through clear communication, timely delivery, and a focus on customer satisfaction, we strive to be the trusted partner for all  joinary drafting needs.

Team OUR TEam

Nuwan Bandara

Design Manager

Lorem ipsum dolor sit amet, consectetur adipiscing elit. Ut elit tellus, luctus nec ullamcorper mattis, pulvinar dapibus

Denusha Wijesinghe

Head Designer

Lorem ipsum dolor sit amet, consectetur adipiscing elit. Ut elit tellus, luctus nec ullamcorper mattis, pulvinar dapibus

Gayan Hemantha

Head Quote Designer

Lorem ipsum dolor sit amet, consectetur adipiscing elit. Ut elit tellus, luctus nec ullamcorper mattis, pulvinar dapibus

Tharuka Aberathna

Team Leader

Lorem ipsum dolor sit amet, consectetur adipiscing elit. Ut elit tellus, luctus nec ullamcorper mattis, pulvinar dapibus

Madushika Dilrukshi

Team Leader

Lorem ipsum dolor sit amet, consectetur adipiscing elit. Ut elit tellus, luctus nec ullamcorper mattis, pulvinar dapibus

Umayanga Iroshika

Team Leader

Lorem ipsum dolor sit amet, consectetur adipiscing elit. Ut elit tellus, luctus nec ullamcorper mattis, pulvinar dapibus

ARCHiMAGNET

Drafting: where imagination meets technical precision