Archimagnet
our services
At Archimagnet, we offer a comprehensive range of professional drafting services tailored to meet the unique needs of our diverse clientele. Our experienced team is dedicated to delivering high-quality drawings with precision, accuracy, and attention to detail. Whether you’re an architect, engineer, contractor, or designer, we are here to provide you with top-notch drafting solutions to bring your vision to life.
By utilising our services, you can increase your production capacity, shorten your production leads times and improve the quality of your CabMaster and Mozaik softwares usage and documentation.
- Interior Joinery drafting
- Customized drafting solutions for specific client needs
- Customer support for all your inquiries and assistance needs
Archimagnet
Our Services includes !





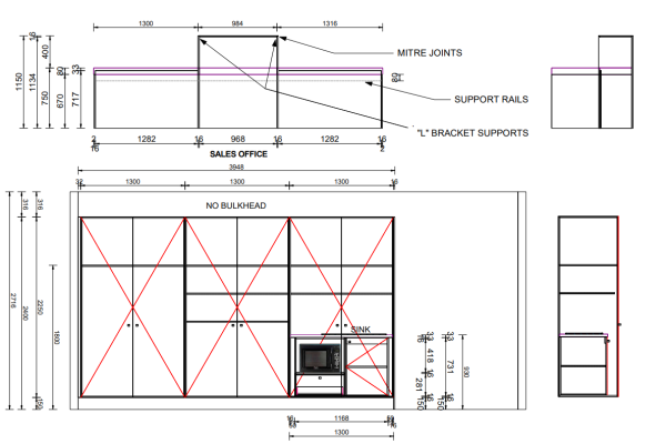
Professional Joinery Drafting
Elevate your projects to the next level with Professional Drafting Services from Cabmaster and Mozaik. Ideal for complex and comprehensive designs. Our attention to detail and commitment to quality will exceed your expectations, bringing your vision to life.
Custom Cabmaster Solutions
Discover the power of Cabmaster Software with our customized
solutions, designed to streamline your workflow and maximize
efficiency.
Innovative Mozaik Integration
Explore the seamless integration of Mozaik into your Projects,
enhancing design capabilities and elevating the quality of
your work.
Expert JOiNErY
DRAFTING
Get the best designs, layouts, and plans for your journey projects with Cabmaster and Mozaik. Our team of experts will ensure that every detail is taken care of, providing you with flawless results every time.
pROFESSIONAL JOiNErY DRAFTING
Evaluate your projects to the next level with professional drafting services from Cabmaster and Mozaik. Our attention to detail and commitment to quality will exceed your expectations, bringing your vision to life.
CUSTOM JOiNErY
DRAFTING
For unique and custom joinery drafting solutions. trust Cabmaster and Mozaik to deliver. Our team will work closely with you to understand your needs and create tailor-made plans that perfectly fit to your requirements.
ARCHiMAGNET
Drafting: where imagination meets technical precision